Boundary Studios

11,000 sq. ft. soundproof studio.

DOWNLOADS

Stages 1-3 Combined

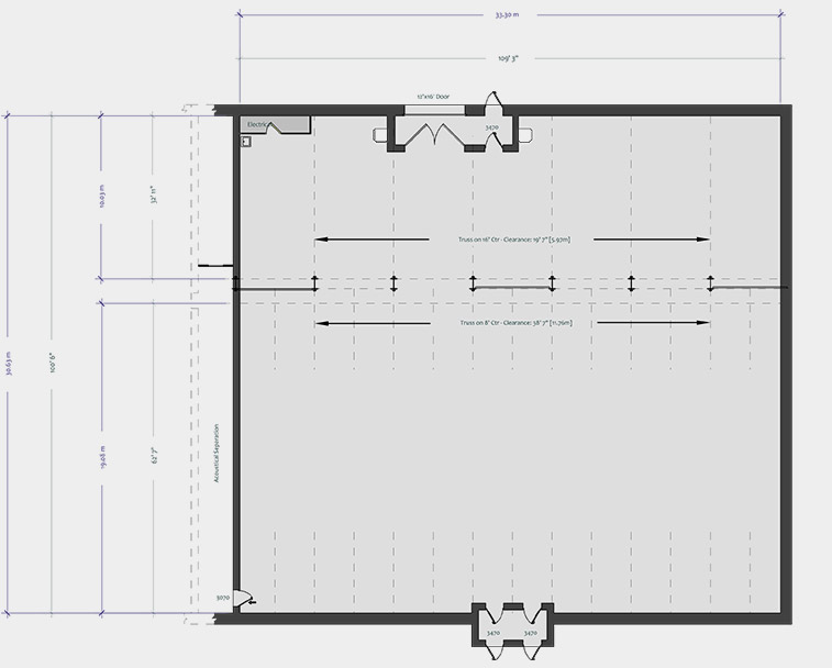
Stage 3 - SPECS

AREA (SF)

11,000

DIMENSIONS

110' x 100'

HEIGHT

40'

NOTES

  • Soundproof
  • Elephant Doors
  • 1800amps 120/208v
  • Grid = 7,500 total lbs. per truss
  • Reverb. time = 1 second at 500hz

 BRIDGE STUDIOS ARE PROUD PARTNERS OF