Boundary Studios

17,000 sq. ft. soundproof studio.

SELECT A VIRTUAL TOUR

DOWNLOADS

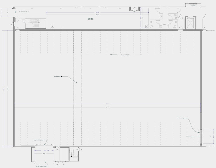
Stage 10 - SPECS

AREA (SF)

17,000

DIMENSIONS

103.5’ x 164'

HEIGHT

50'

NOTES

  • Opened October 2018
  • 1600amps 120/208v w/additional 1600amps available

 BRIDGE STUDIOS ARE PROUD PARTNERS OF