Boundary Studios

Three level office building

SELECT A VIRTUAL TOUR

FIRST FLOOR DOWNLOADS

SECOND FLOOR DOWNLOADS

THIRD FLOOR DOWNLOADS

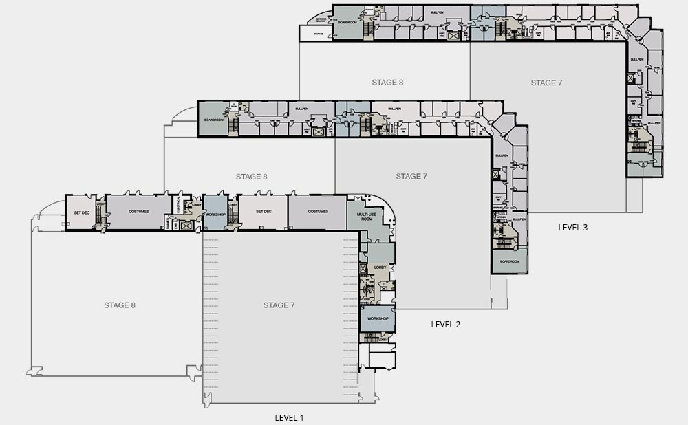
Stage 7/8 Offices - SPECS

NOTES

  • Situated adjacent to Stage 7 and Stage 8.
  • First Floor – 9,030 sq. ft. (including common areas) divisible into 2 spaces.
  • Second Floor – 11,300 sq. ft. (including common areas) divisible into 2 spaces. Kitchen included.
  • Third Floor – 11,300 sq. ft. (including common areas) divisible into 2 spaces. Kitchen included.
  • Additionally, there are washrooms and elevators on each level.
  • Currently the offices are available for productions, Visual Effects Departments, or post–production space as the office pod layouts can accommodate these types of uses.

 BRIDGE STUDIOS ARE PROUD PARTNERS OF